独一无二的奢华体验!探析巴黎Neuilly罕见带酒店设施的新房项目
- 银舍地产顾问

- 2023年6月6日
- 讀畢需時 3 分鐘
已更新:2023年7月5日

在上一篇文章中银舍带您走进了这栋位于足球巨星梅西的同款精华地带的全新豪宅群,千金买房,万金买邻,高端公寓往往是跻身顶级社交圈的敲门砖 。而顶级社交圈本身就是一个高质量交互中心,而今天,银舍将从专业角度带您再次深入了解新房项目 - Neuilly雨果大街58号。



法国最大开发商 之一ICADE
位于法国Neuilly的雨果大街58号的主开发商是法国最大的地产企业之一ICADE。该公司成立于1816年,是法国议会控制下的金融机构Caisse des Dépôts et Consignations的子公司。截至2019年,ICADE的总资产达到113亿欧元,其母公司更是被认为是世界上最富有的主权财富基金机构之一。ICADE以其雄厚的资金实力保证项目的质量和安全,健康的财务数据加之自身获得低成本融资,即使在行业低谷期,也能保持强大的竞争力。

法国存托银行
作为央企子公司,ICADE开发的楼盘将严格按照国家标准进行施工,确保预期的标准化施工质量。开发商管理层致力于企业的稳定发展,因此在房屋质量的把控上投入更多精力。在Neuilly雨果大街58号,央企开发商的加持使您能够规避私企开发商可能带来的许多麻烦,更加确保您的新家的高质量。



特别是在这个楼盘,开发商将为您支付法国买房中的一大笔费用——过户税。通常情况下,买家需要承担翻修工程(VIR)总房款7%-8%以及重建工程(VEFA)总房款3%-4%的费用。然而,开发商将自行承担这一费用,从而减轻了您购房款项的相当一部分压力。
与此同时,您只需在首次预定时支付翻修工程(VIR)项目的4%或重建工程(VEFA)项目的2%作为定金,并在签订购房合同时支付翻修工程(VIR)项目的35%或重建工程(VEFA)项目的40%作为首付款,分期付款的方式相对而言能够保证您的资金流不会承受巨大的压力。此外,工程已于今年开始施工,预计将于2026年第一季度交付。值得特别强调的是,售卖的74栋住宅均拥有独立入口,确保您的安全和隐私,避免复杂的人群干扰。同时,您还可尊享位于一楼的健身室和恒温游泳池,并有69个配套车库和57间地下室满足您的生活需求。
针对没有法国国籍的外国居民或者投资人员,银舍地产一站式解决,为您提供了中文版本的购房所需文件和条款,助力您尽快享受到塞纳河畔纳伊的完美景色。



对比其他豪宅类楼盘,Neuilly雨果大街58号没有完全着墨于大户型房产,而是提供了从Studio到五居室的多种户型。最终将在2026年第一季度彻底完工。完工后的Neuilly雨果大街58号将把古典主义与现代主义融合的最佳体现,体现出不同的空间构思,空间中新旧之间呈现出一种平衡和协调的互相融合,为您营造出极致优雅,平和,安逸的居住氛围。




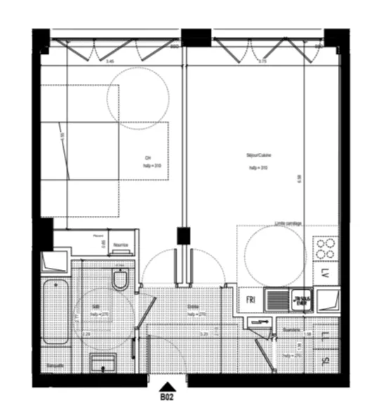
Studio户型图
在完工后的74套房产中,特别为单身贵族准备了studio户型,其首付仅需15万欧元。尽管面积较小,但设计师对生活品质的追求并未受到影响。他们巧妙运用法式线条,注重轴线对称,展现出恢宏的气质和底蕴。这些看似简单的户型,实际上蕴藏着非凡的感官体验。无论是表面的功能性还是内在的设计,都能带给您与众不同的居住体验。

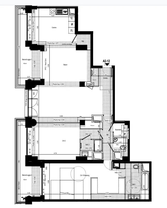
300平米户型图
在重建工程(VEFA)中,注重奢华居住体验的户型备受关注。其中,顶楼的300平方米大平层不仅可以俯瞰整个巴黎的夜景,更私享珍稀的大面积室外花园。设计师通过最大化利用空间,让光线充分进入室内,创造出丰富的光影效果,并实现室内外景观的完美融合。当您疲惫的身心回到这个居所时,仿佛置身于都市中的一片宁静林间,远离城市喧嚣,享受天伦之乐。向阳而生,逐光而行,这无疑是拥有巴黎的最佳方式。
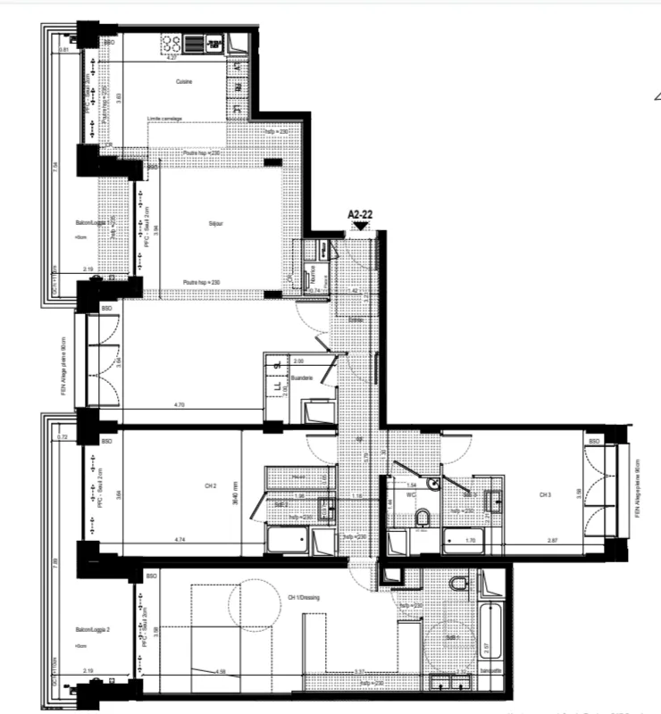
户型图 (一居室 - 四居室)


从专业角度概括:背靠法国央企,提供施工保证 :选择多样,付款方式灵活多元;更有银舍为您护航,74套不同类型住宅重塑了卓越现代和舒适自在的生活艺术。以自然绿化和超强景观为设计初心和概念主导,成为巴黎高端生活的全新风向标。
2026年,希望和您一起见证巴黎全新的生活方式的全面诞生!
更多新房项目详情,请点击以下链接:














留言